Menu
Home
Projects
About
Services
Plans
Project Detail
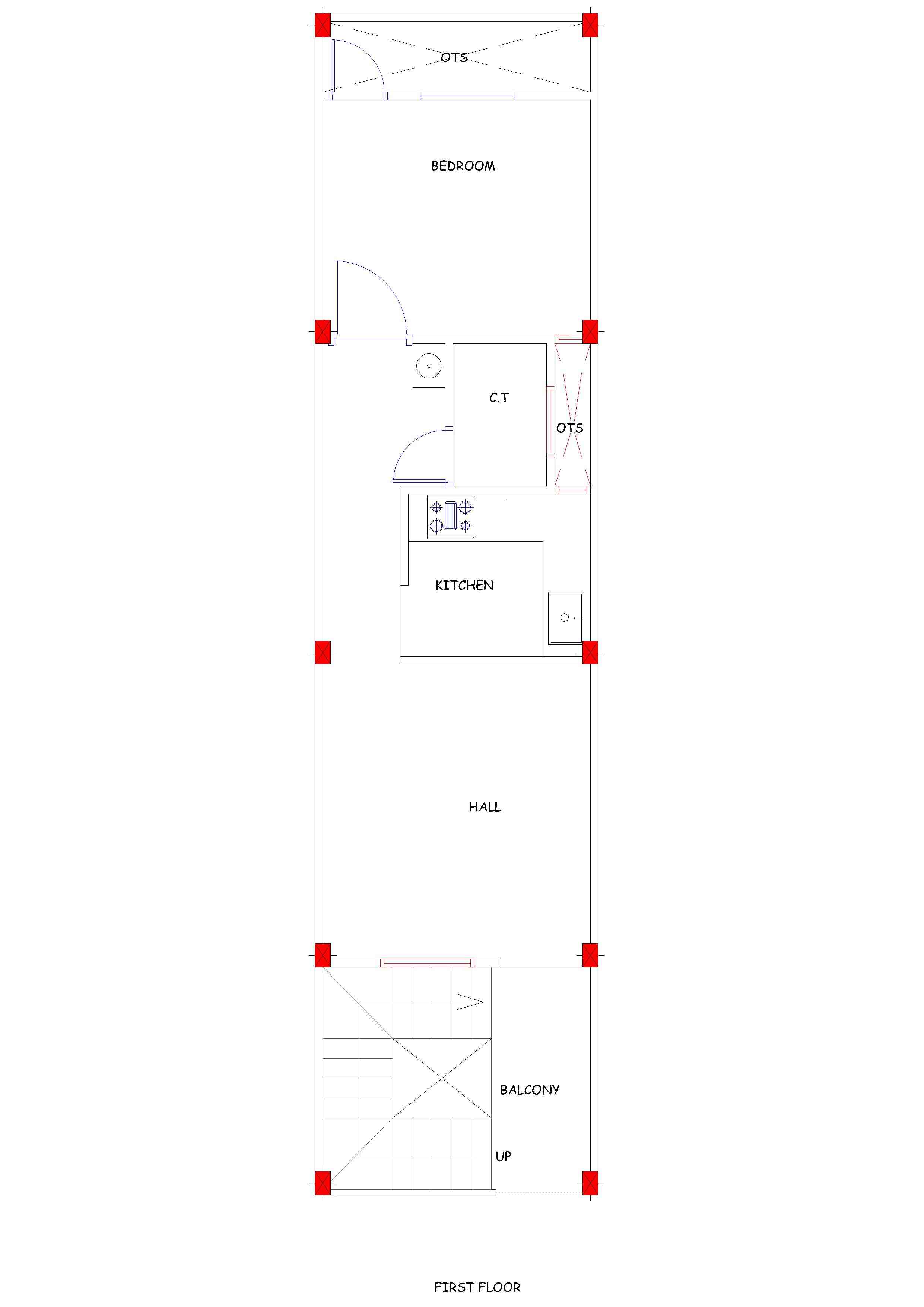
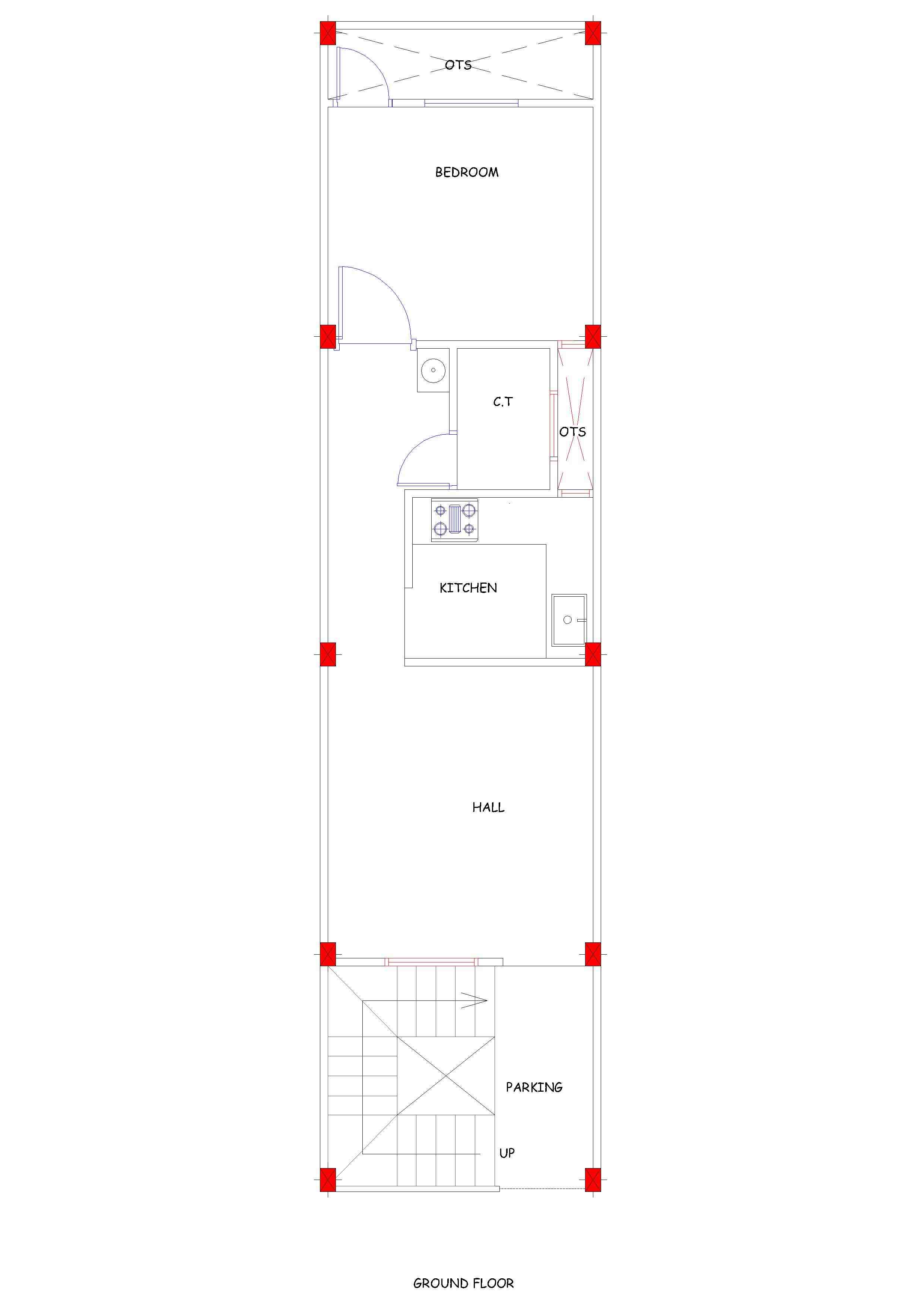
12FTX50FT (PW00134)
Floors :
G+1
Plot Size(WXL) :
12FTX50FT ft
Description
Bedroom:
2
Living Room:
1
Kitchen:
2
Balcony:
1
Parking:
1
Toilet:
2
Stair:
Outer
Planning (PDF File)
2d Planning
Planning Detail
Elevation (Image File)
Project Elevation
Elevation (PDF File)
Project Elevation
Interior (Image File)
Plan Interior
Interior (PDF File)
Plan Interior
Buy Now ₹ 59
Planning (CAD/Max/Sketchup File)
2d Planning
Planning Detail
Elevation (CAD/Max/Sketchup File)
Project Elevation
Interior (CAD/Max/Sketchup File)
Plan Interior
Buy Now ₹ 99
×
Download Planning Plans
×
12FTX50FT
Download
Download Planning Detail Plans
×
Download Elevation Plans
×
Download Interior Plans Image File
×
Download Planning Plans CAD Files
×
12FTX50FT
Download
Download Planning Detail Plans CAD Files
×
Download Elevation Plans CAD Files
×
Download Elevation Plans PDF Files
×
Download Interior Plans PDF File
×
Download Interior Plans Sketch Up File
×
×
Login
Get Otp
Please enter the one time password
to verify your account
A code has been sent to your mobile number
Validate
×
Sign Up Form
Sign Up